房龄 90 年,面积 22 ㎡,在老破小里也算长辈了。
住友@harryy76 的家在上海,是个老洋房里的顶楼。内部结构破败不堪,没有独立厨卫空间,可以说越住越难受……
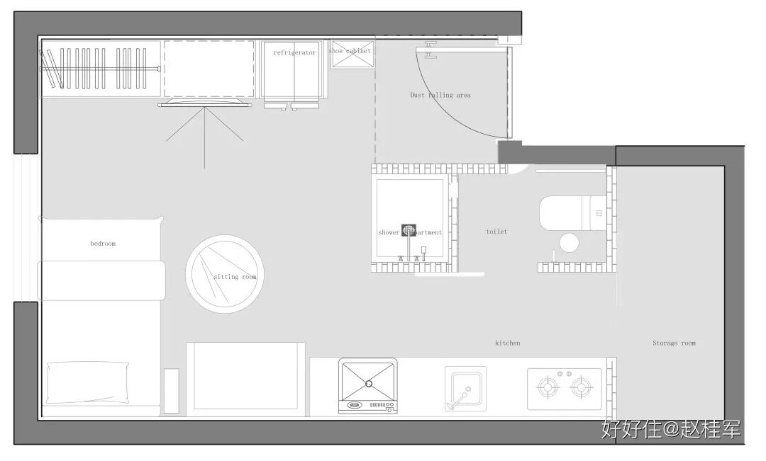
他找来好好住认证设计师@赵桂军 帮忙,不仅实现开放式厨房、卫浴分离,各种适老设施也通通给齐……
关键是只花了 16 天,怎么做到的?
90岁的22㎡老破小,
堪称真极限挑战。
这是一个建于 1930 年代的法式三联排建筑,住友@harryy76 家的老房位于顶层三楼。
现在一楼被租出开了生鲜店。
他的外公曾是一名解放上海的退伍军人,上个世纪 50 年代分到了这个 22㎡ 的小宅,用隔板隔成里外两间,一家三代人居住至今。
屋主读高中时也住在这里,晚上还得把饭桌推到墙边才能腾出搭单人钢丝床的空间,生活虽然不便,但承载着许多温暖回忆。
为了不打扰外婆休息他练就了搭床拆床无声无息的本领。
后来家人陆陆续续搬离,外公外婆也相继去世,只剩年过 6 旬的舅舅独居于此。家,也一直停留在早年的模样。
室内没有独立厨卫空间,厨房和卫生间分布在一、二楼,几家人家合用。楼梯又窄又陡,舅舅肢体略有残疾,一只眼失明,行动起来非常不安全。
<< 滑动查看改造前的居住环境 >>
建筑临街常年受马路噪音困扰,墙体隔音差,舅舅的睡眠质量也得不到保障。
屋内鼠患严重,家里食物每天都得想方设法转移安全阵地。种种不便让屋主下定决心给舅舅重新装修,让他能够在此安度晚年。
木门背后是个小小储藏室,现在也成了老鼠重灾区。
16天极速爆改,
日系工法解决老破小硬伤。
老建筑年久失修,拆除后发现砖木严重老化,随便拿掉一块小砖都能看到隔壁邻居,开槽改造几乎不可实现。
楼层间地板承重有限,改造难度进一步升级。
隔音隔热差,墙面也出现墙砖脱落发霉、墙皮脱落现象。
好在有好好住认证设计师@赵桂军 助力,为了让舅舅能够尽快入住,他用日系工法改造(日式整体卫浴,GL墙体处理,地面二重床架空等),只花 16 天全部搞定。
工期进度表
· 拆除墙面水泥抹平,明线盒排线。(2天)
· 进口整体淋浴房预制。(3天)
· 地面二重床架空。(2天)
· GL墙面处理。(3天)
· 地板铺设,门窗安装。(1天)
· 墙纸瓷砖铺贴、灯具家具橱柜安装。(5天)
<< 左滑查看改造前户型
为了保证墙面长久不开裂,且不受隔壁影响,设计师采用 GL 墙面工艺。(即在墙面平整完成后,用石膏粘合剂,在原墙面上整体覆盖一层日式石膏板,就可直接刷涂料或者贴墙纸。)
哪怕是黄梅天也大大节约了等待二次批腻子干燥时间,还大量减少了粉尘。
石膏板和墙面之间空隙,正好可以走电线管,安装插座、开关暗盒,一举多得。
吉野石膏板安装后的样子。
拆除天花板后,层高改善不少,设计师在原地上架空 18 厘米,搭建日本二重床架空系统,解决室内管道铺设难题。(无需水泥找平施工快捷,隔音保暖,地面有弹性还能防止老人摔伤。)
架空地板耐磨、不易变形,房屋翻新还能将整套地坪系统原样使用。
KEY POINT
GL墙面&石膏板特点
①施工快:吉野石膏板可直接贴墙纸,无需批腻子,节省时间;
②免挖墙:在架空层直接排线管,无需开槽墙面,排布管线,作业量小;
③寿命长:无需铲墙,非常平整,8-10年更换表面壁纸即可;
④保温强:利用空气层和石膏板,双重保温;
⑤隔音好:双面贴12.5mm厚石膏板,可提供10一15分贝的隔音效果;
⑥分解甲醛:石膏板特殊材质能够有效分解甲醛。
如厕沐浴,
再也不用上下楼啦!
抬高架空地面后,玄关自然形成了个落尘区。地面采用东理塑胶地板,防滑耐磨,折叠换鞋凳和扶手都来自 NAKA 助老设备。
门后挂钩用来给舅舅挂衣服包包,台阶下还做了灯带,方便夜间换鞋。
入户左侧新建了日式整体淋浴房,底座、花洒、照明和排气一体,没有漏水隐患。为了让舅舅洗澡方便,屋主还买了一个折叠凳。
淋浴间背后是马桶间,设在斜坡处以便马桶管道直接经过储藏室到户外污水管。
木纹墙纸具有抗菌、除臭和空气净化的附加功能。
马桶上安装了助老扶手,方便舅舅顺利起身。霜山带轮收纳箱,深款和浅款叠放,用来存放厕纸等卫生用品囤货。
小空间里整俩床,
陪伴照料不再愁。
床旁边是个小双人沙发,拉出可变单人床,方便家人过来照顾舅舅。用天马的轮滑夹缝小推车代替床头柜,非常灵活。
沙发对面是集中收纳区。为了高效利用空间,拆去宜家汉尼斯书架一块隔板, 32 寸电视有了安身之地,剩余层面用来储物。
电视上面放的是50年代的三五牌台钟,属于全家的回忆。
换了窗户后,室内隔音效果也有了很大改善,舅舅睡觉安稳不少。
螺蛳壳里做道场,
现代家电一样都不能落。
灶旁边的白色门板里是储藏壁橱,用密度板把内部重做一遍,拒绝老鼠登门。
宜家定制橱柜,配套收纳盒,省心好用。为了把洗烘一体机嵌入柜体,做了高低台面。
水槽用的是欧琳不锈钢大单槽,顶面加了一盏筒灯,对于视力不佳的舅舅很友好。
几十年来,舅舅一直住这个小家里,非常依赖周围环境,因此也不愿搬离。为了让舅舅住得舒适一些,翻新老屋是@harryy76 早就想做的一件事。
这让我想到之前看《全能住宅改造王》有一期屋主提到的那句,「我们一家人围坐在这里,虎杖和薇蕨还是四十年前的味道啊!」
我想,对于他来说,这个站在风雨的老屋,是他儿时记忆的起点,是舅舅的养老居心地,更是家族三代人的情感承载所在。
好好住编辑部 | 策划
路人饼 | 编辑
好好住APP用户@harryy76&认证设计师@赵桂军 | 图片
Go to "Discover" > "Top Stories" > "Wow"