侘寂,指的是朴素又安静的事物。它既是一种思想,一种美学,也是一种世界观。侘寂一词带有视觉上的意蕴,那些磨损、黯淡、清瘦的色彩,往往具有低调、简洁、洒脱的气质。
空间摒去大多无用的装饰之物,自然在其中悄然演绎,与平静有序的时光一同温存出风雅韵味,含蓄中透露着怡然而惬意的生活美学。
百叶窗过滤了阳光,留下一根根由光组成的线条,使室内变得通透有节奏感。
当每一束光洒进室内地面、桌面、器皿时,总是如此非凡!它每一次浮现的情形都妙不可言——时而柔和;时而硬朗;时而暗淡;时而光亮!
空间以中性色调为主带着原生态的纹理质感,没有风格强烈的元素,凭借着质朴的美感取代无谓的奢华。
侘寂之美主张“非对称主义”,呈现一种非对称却包容的美。空间的布局简约而随意,满足着最基本的功能需求,尽量保持布局中的“空”与极简,呈现侘寂风的随性之美。
解构曲面
DECONSTRUCTION SURFACE
-
采用低饱和度的柔和色系是侘寂风配色,虽不浮华,却独有韵味,虽搭配简单,却有其轻奢之处,勾勒出寂静高级的家居氛围。
斑驳的墙面营造出岁月感,像是在时光的打磨中呈现出斑驳黯淡的质感。
原生质感
NATIVE SENSE
-
△屋顶花园
你的名字,我的姓氏
与美对话,室内外的张力
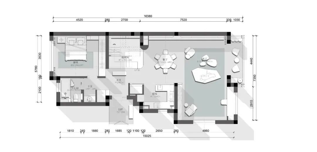
△1F平面图
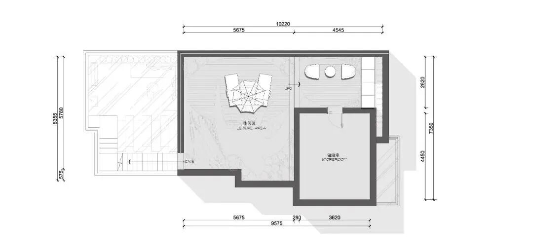
△2F平面图
△3F平面图
△手绘方案图
项目信息
项目名称 | 东方庭院
项目面积 | 202㎡
项目地址 |上海 朱家角
主创设计师 | 张迈-Michael
设计参与 | 刘锋、谭成杰
业务经理 | 幺青云
张迈 | Michael
MCO STUDIO创始人/设计总监
居所藏于天地之间,落在淡水河畔,临水的诗意使人放下文明世界的凡此种种,专注于纯粹、原生的精神。