越接近自然
越接近真相
越接近真相
-
项目位于城市未来市中心的超甲级写字楼,大面积落地玻璃与公园及河道对望,在地理位置上坐拥得天独厚优势。这是一间年轻合伙人的律师事务所新址,对其事业发展具有里程碑式的转折意义,如何打造新时代概念的法务空间是本案设计面临的高度挑战。
△项目视频
源起
-
律法是现代生活的一个重要构成,探寻它的源起,是权利经由神、宗教到交回公民手中,这是中西方法律发展共同的漫长历程。因而,总有一些历史象征和代表本质的永恒元素,贯穿至今。
西方的正义女神像雕塑,最早是来源于古希腊神话里的人物忒弥斯(Themis),是主持正义和秩序的女神,左手提天平秤,右手举剑,代表着裁量公正。后来也因此和法律关联。
古罗马人在公元一世纪就把天平赋予了其法律公平的含义,对称平衡的三角天平所代表的蕴意也一直延续至今。体现了人们对正义公平的渴望,对事物平衡的追求,以及对自然真相的尊重!而这正是律法亘古不变的意义所在。
△詹姆斯·西蒙美术馆
这外化于建筑,是一种秩序的表达,对称、三角、列阵等元素构建起建筑空间的秩序。
构建秩序
-
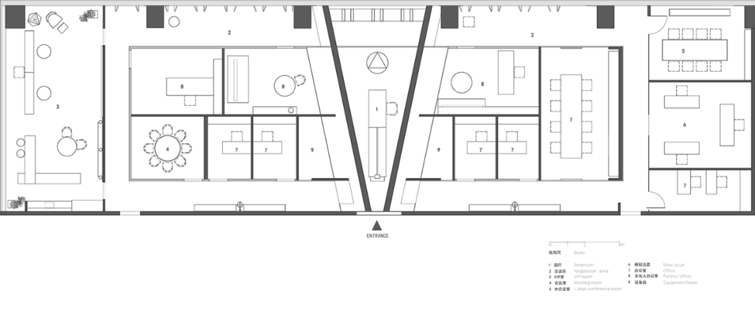
功能区的排布在平面上呈对称状,前台接待、律师独立办公室、水吧休闲区、会议室、行政办公以及独具律所特色的模拟法庭。功能区丰富,却又井然有序。前台如一个中轴标尺,其它功能区依此整齐朝两边排开。
手抚毛面大理石的原始质感、耳闻潺潺流水声中拉开项目的第一空间。
前台区域,两面倾斜的对称墙体,度衡后的角度和比例,与天花构建起空间中的等腰梯形结构。镜钢天花折射和延伸了空间神秘感,形成放射状三角。大面积的深灰色水泥涂料,和地面的水泥砖留住了自然光的痕迹,地面线性灯光增加了空间气氛的温度。
面对大面积自然光的恩赐,恍若教堂神光聖释,空间气质油然而生。场所引领和渲染着情绪,构建起身体与精神对话的桥梁。想象四面柱列围立的古典建筑,庄严屹立,连接着自我与神性。空间即时间,时间同时模糊了空间风格的定义!
秩序是主客观之间的一致;是在事物中发现自我的精神。
——法国哲学家 柏格森
落地玻璃前的黑色门帘,互相平行,列序而过,平衡且齐整,将律法的庄严、公正外化而出。在开与合的不经意之间让光不断制造不同的空间呈现,形成了一种无形的秩序感。
尊重自然
-
落地窗外是东平河和绿植茂盛的东平公园,视野宽广无阻。室内,水流落在石卵上,循着拍打的节奏声,围绕着中心功能区转动。长方形的中心功能岛区与东平河的浮岛,互相呼应,将大自然的独特景观延伸入室。
把最好的风景留给所有的人,这本身在企业架构以外体现出一种平等,让所有人都能体验空间与自然的对话,让所有的法务工作者都时刻接受自然光的洗礼,聆听自然真相的告白,鞭策着对执法公正平等的初心!
空间是由多间并排办公室打通的方正长方形,且与河道互相平行。于中间的前后左右空出一条通道,仿拟浮岛,在室内框出长型的中心功能岛区,构建起建筑、室内与自然的连接。
人与自然有着紧密的关联,从法律的源起也可找到自然的元素。律所内,中心功能区的四周通道犹如河道里互相贯通的水平面,与水声、穿过落地窗的阳光,构成美妙的自然氛围。
靠近落地窗的是公共区域,有着微风和阳光的拂照,以及心旷神怡的视野,是空间最优越的位置。精致舒适的桌椅,可以休憩,也适合无职级拘束地交流工作。将最好的区域开放,这种一改常态做法,是把律法中的平等性质无声地设计入空间的日常使用之中。而面向落地窗的中心功能区的办公室采用全玻璃间隔,同样能拉近阳光和窗外景色的距离。
位于西面的水吧休闲区是观赏落日的绝佳去处,整面落地玻璃留住每一天落日的脚步。
与时间共舞
-
空间的新与旧被模糊,没有了明显的界限,就如律法从诞生延续至今,不断在新与旧之间交织发展。而时间无声地流逝,只沉淀下那些宝贵的东西。
多处的水泥柱保留原态,柱上明明糊糊的标高和型号的印记,透着过往的痕迹。崭新的玻璃墙、木板、地毯与其形成对话,展示着新与旧的空间张力。
罗马洞石作为年代久远的建筑材料。空间里,倒三角的前台台身和扁柱衔接处都融进了罗马洞石,平添了一种年代感和文化气息。水泥涂料的主打色调和质感,使得空间安静沉稳,低调的灰色也无新旧的区别。
材料的新旧对比和选择,模糊了空间的新,隐喻律所在专业领域的沉淀。时间奔腾不息,无论物质的还是精神的,总会共同塑造出新景象、新收获。新与旧的交织,自然与真相的告白。
项目信息
项目名称 | 广东国智律师事务所(佛山)
项目地点 | 中国 广东 佛山
业主团队 | 克讼团队
项目面积 | 600㎡
设计时间 | 2021
设计单位 | 瑞坤国际—正方良行设计
主创设计 | 徐庆良
设计团队 | 黄缵全、彭伟赞、黄伟奇、陈柏辉
图纸深化 | 和作舍深化设计
家具供应 | 良行文化
家具品牌 | Thonet、Carl Hansen&Son、BD Barcelona、Stellar Works、Ligne Roset、Flos、Akari、Artemide
主要材料 | 费罗娜水泥瓷砖、水泥涂料、罗马洞石、大花绿大理石
视频制作 | 浠语文化传媒
项目摄影 | 欧阳云
徐庆良 Terry Xu
瑞坤国际—正方良行设计 首席设计师
良行Masanori Art 创始人
和山集 联合创始人
正方良行成立于2017年,是瑞坤国际旗下的子品牌,以徐庆良设计师为引领,专注于精品空间的缔造。
不拘于特定的风格,围绕“建筑思维”在室内的展开为设计的核心手法。通过对原始空间的精准诊断,融入美学和新科技、材料的创新运用,平衡室内、自然、人三者间的关系,打造独特且舒适的空间体验。为商业项目定制独属的设计策略,助力设计转化商业价值。在项目设计注入品牌内涵和价值观,赋予空间更多的商业发展可能性。正方良行设计作品于国内、外各类设计大奖中屡获殊荣。
往期阅读