效果图
在经历了高速而粗放式的“城市化”发展之后,深圳正进入到精细更新式的“都市化”发展时代。现有的资源集中、类型单一的孤岛式文化娱乐设施已难以满足当代深圳人对城市文化生活的需求,而由若干嵌入式的“文化生活锚点”所组成的网络,正成为新的城市文化建设目标。新一批的公共文化建筑趋向于更加融入城市肌理和日常生活。相应而生的,应是一种在社会角色和建筑类型上都不同于以往的新的文化建筑的类型。
效果图
传统的文体中心中,各类功能空间往往相对独立封闭以避免使用上相互干扰,这就使得整座建筑成为纯功能性场所而非积极的社会交往空间;而围绕在建筑周边看似零散的城市开放空间因提供了不同人群之间互动的多种可能性,反而成为这些文化场所真正活力的来源。
街景
在粤海文体中心的设计过程中,在保证各类场馆功能独立运营的基础上,建筑师尽可能多地提供城市开放空间,以促进各馆使用者之间的互动。建筑本身因占地面积受限而不可避免地走向立体化。因此,都市实践尝试突破城市开放空间仅限于地面广场的概念,将其抬升至空中并与建筑体量在垂直方向上进行叠加,由此形成若干相互连通的空中公共活动平台,在建筑的不同高度上都能提供良好的与城市互动的体验。在此基础上进一步打破水平各层之间的空间界限,置入灵活使用且更具公共性的新功能,使平台层成为激发都市活力的空中城市客厅。一个立体化的文体建筑类型由此产生。
设计功能分析图
分解轴测图
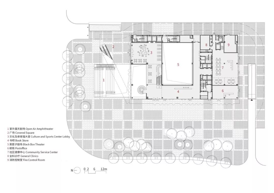
在处理建筑与场地的关系时,都市实践在用地局促的情况下,选择将一至四层的建筑体量在面向十字路口的街角处退让,形成一个上有遮蔽的小广场,周边学校及商业的来往人流都可以在此汇聚,营造出一个积极的街区公共空间。咖啡厅、剧院入口及社区公共性最强的服务类功能被设置在可达性最强的地面层,并向负一层及二层延伸。向北侧和西侧打开的首层建筑界面进一步促进了与城市广场的互动。
城市客厅
主要功能空间的分布综合考虑了空间使用效率、结构合理性及对环境的影响等各方面因素。图书馆被设置在最靠近地面的体量中,给予其最佳可达性,同时其规律的柱网作为上方的大跨度空间桁架的支撑,保证了结构上的合理性。
社区生活广场
游泳馆置于建筑体中部,其下方半开放休息区成为空中城市客厅。空中泳池不但拥有极佳的城市视野,其自身突出的体量也成为城市景观的一部分。最具活力的体育场馆被放置在建筑的最高处,以最大限度减少对周围环境的噪声干扰,其下方的空中体育花园可作为居民热身和户外锻炼的场地。
剖面图
社区生活广场
3个功能体量以及位于不同高度上的城市公共空间,并非同质化地均匀分布,而是拥有各自不同的功能属性和场所氛围。“社区生活广场”最为公共开放,是前往社区服务、图书馆、运动场馆的各类人群汇集的场所;“城市空中客厅”是文化类功能和体育类功能的转换层,室外网球场与24小时图书借阅处都位于此处;“空中体育花园”则提供室外健身场所,视野最为开阔,环境最为安静放松。3个城市平台之间由公共大扶梯串联,共同构成了一个立体的24小时开放的街区公园。
空中花园
项目图纸
区位图
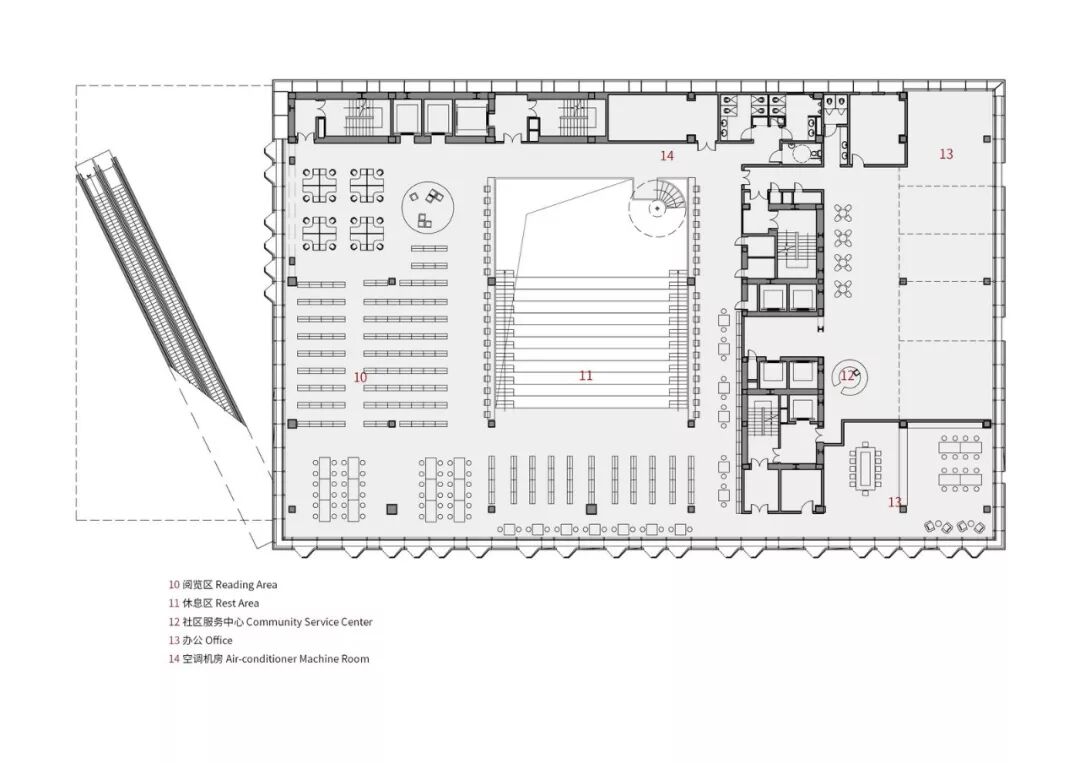
一层平面图
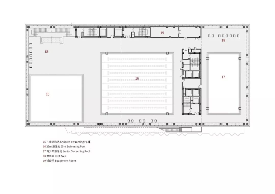
三层平面图
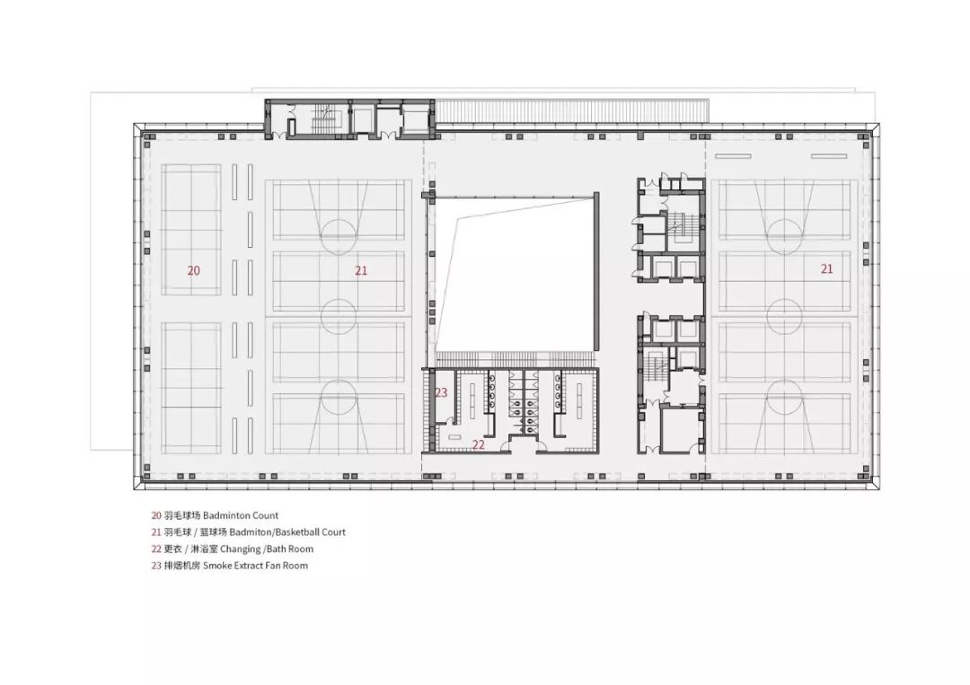
七层平面图
十层平面图
剖面图
实体模型
结构模型
项目信息
建筑师:URBANUS都市实践
地址:南山区,深圳市
项目年份:2018-
用地面积:5,760 ㎡;建筑面积:38,911 ㎡
主持建筑师:孟岩
投标阶段设计团队:
项目经理:林怡琳
项目建筑师:Milutin Cerovic
项目组:陈卉,徐志波、申晨、张雪娟、张佳佳;饶恩辰、李聪毅、刘勘、岳然、杨铭川、郑植(设计支持);姚咏梅 姚晓微(技术总监);王一帆、张诗静(实习)
方案深化与实施团队:
项目总经理:林海滨
项目经理:张海君、张佳佳
项目建筑师:Milutin Cerovic
项目组:孙艳花、廖梦君、李想、游东和、陈卉、臧敏、张富军、翁华、张映园、张超贤;张雪娟、魏志姣、李冠达、许潇 、熊洋羊(景观);姚咏梅、姚晓微(技术总监);刘珺睿、黄镕、罗思杨、宋昊城、吴子仪、刘雨浓、张昱升、肖潇(实习生)
建设单位:深圳市南山区建筑工务署;代建单位:保利华南实业有限公司
合作公司:深圳中咨建筑设计(施工图)
荷捷建筑顾问(北京)/ H&J International, PC(结构)
万山丹香港有限公司(幕墙顾问)
深圳煜科国际幕墙工程设计(幕墙)
深圳国研建筑科技有限公司(绿建)
中辰远瞻(北京)照明设计(照明)
深圳市幻影视觉广告有限公司(标识)
编辑:韩爽、莫因同
前往“发现”-“看一看”浏览“朋友在看”