Weixin ID China_greenstar
About Feature 绿色装配式建筑产业分会是中国建筑节能协会(住建部主管)的直属二级机构。分会本着:组织制定有关标准,完善产品结构体系;推动产业创新,加快成果转化;向政府提供导向建议,参与政策研究编制;立足装配式,推动产业绿色低碳新发展。
全文发布 文末可下载
各区县(自治县)住房城乡建委,两江新区,经开区、高新区、万盛经开区、双桥经开区建管局,工程设计单位,施工图审查机构,施工单位,各有关单位:
重庆市住房和城乡建设委员会
2020年6月23日
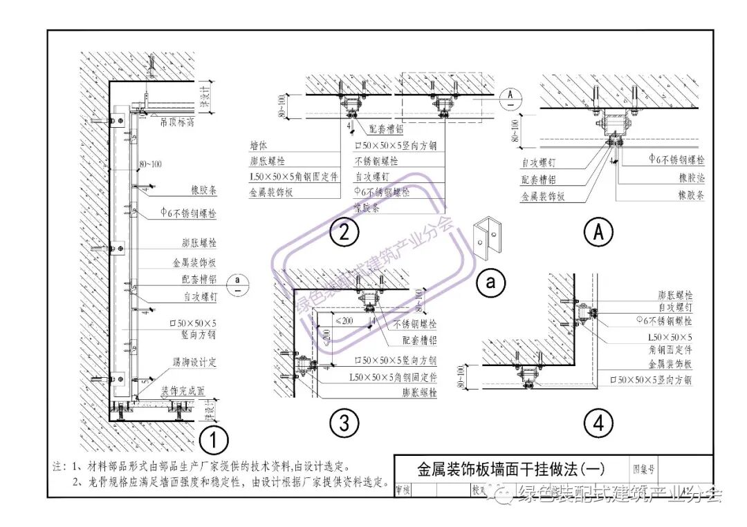
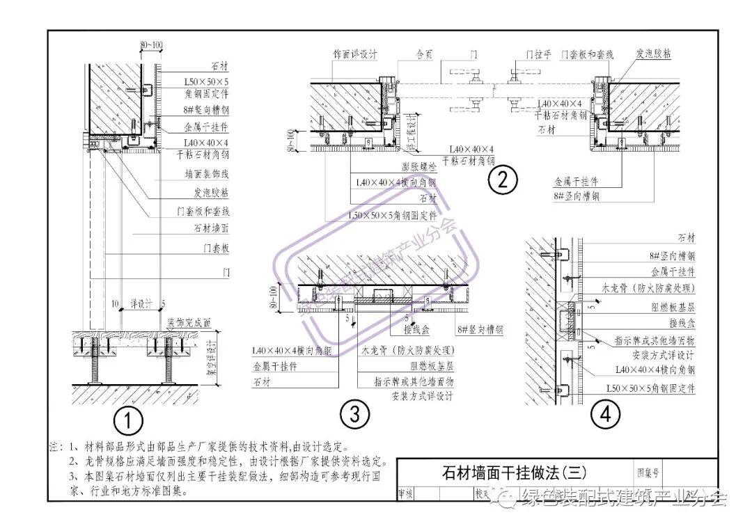
(点击图片看大图更清晰)
全文下载链接: https://pan.baidu.com/s/1V0yGnN3HPaf50WrIiTmhWw 提取码: 8c53
一目了然好门窗
品建100代言样片
1
分会成员证书
加入分会获双份证书总会成员证书
Scan to Follow