财富之门 为您而开
匠心精筑,商业集群
财富机会 旺铺招租
两山丽苑商业街区域简介
位于璧山区璧泉街道聚金大道52号、50号、46号、44号,处于璧山工业园区与人居生活区结合部,周边工厂林立,有两山丽苑经适房、金科·天壹府、佳兆业·樾伴山、曲江新鸥鹏·锦粼府、弘阳·昕悦府等居住小区,区域内为中等收入人群,区域内为中等收入人群,人流量较多,繁华程度较好。
两山丽苑商业街现状
目前两山丽苑商业街已出租部分商铺,租赁商铺后即可享有浓厚的商业氛围,开启您的财富之门,而且商业街由两山公司与龙湖公司合资成立的龙湖两山物业公司为您提供优质的物业服务,目前入驻业态为餐饮、超市、医疗、茶楼、电竞酒店等。
两山丽苑商业街商铺招租详情
标的楼层:第1至3层
建筑面积:详见下方招租明细图
招租底价(一年):详见下方招租明细图
保证金:详见下方招租明细图
房屋结构:钢筋混凝土结构
租赁期限:租赁期为5年的租金不递增,租金按年支付;租赁期为10年的租金自第6年开始逐年递增5%,租金按半年支付,免租期均为3个月。
标的配套:配备免租金停车位,配备停车位的物业管理费由 商家自行承担。
标的业态:由于两山丽苑商业街已入驻部分商家,为避免同类型商家过剩和同质化竞争,此次招租商铺禁止经营:综合生鲜超市、电竞酒店、药房、诊所、理发店、再生资源(废旧物品回收)、享哆味(同类型品牌)、350平方米及以上的汤锅类餐饮、500平方米及以上的大酒楼(详情以项目公告为准)。
两山丽苑商业街商铺招租明细
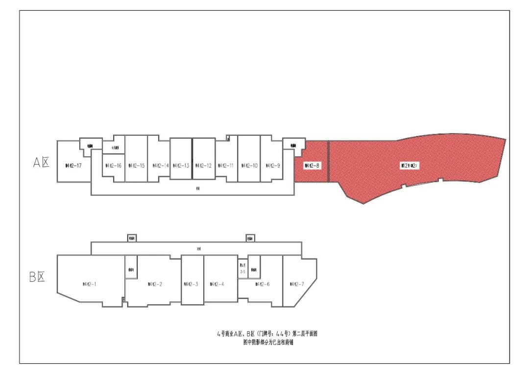
一、44号A、B区招租明细
44号A、B区平面图
二、46号A、B区招租明细
46号A、B区平面图
三、52号A、B区招租明细
52号A、B区平面图
四、50号A、B区招租明细
50号A、B区平面图
约26.84㎡~2733.08㎡
优质商铺 奢阔之选
项目信息咨询
1、登录重庆产权交易网,网址:WWW.CQUAE.COM,在搜索栏输入“两山丽苑商业街”关键字后,点击搜索按钮,即可了解项目详情或是线上报名。
2、扫码下载“渝产权”手机客户端,在搜索栏输入“两山丽苑商业街”关键字后,点击搜索按钮,即可了解项目详情或是线上报名。
3、重庆联交所璧山支所项目咨询:
联系人:张老师、熊老师
联系电话:023-85295989 85295979
报名地址:璧山区璧城街道兴旺路9号附51号
4、标的查看联系人:吴老师
联系电话:023-41555927
扫码关注
“必好行”微信公众号
—必好行 智慧行—
扫码下载
“必好行”APP
必好行公司 24小时客服热线:400-000-700
来 源:必好行
编 辑:邹梦雨
初 审:杨忠东
总值班:左三刚
总编辑:张 伟
声明:除原创内容及特别说明之外,推送稿件文字及图片均来自网络及各大主流媒体。版权归原作者所有。如认为内容侵权,请联系我们删除。凡璧山区融媒体中心所属平台作品,未经授权不得转载、摘编或以其他方式使用。